Նախագիծ/
Մասնաշենք Բ/
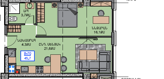
Հարկ 15
Previous
Next
Նկարագրություն
Նախագծի անվանում
The Park Lvovyan
Մասնաշենք
Բ
Հարկ
15
Բնակարանի համար
Բ70
Ք․ մետր
45.70
Վաճառքի տեսակ
ազատ է
Սենյակների քանակ
Ննջասենյակների քանակ
Արժեքը (1քմ)
656000.0 AMD
Արժեք
29979200 AMD