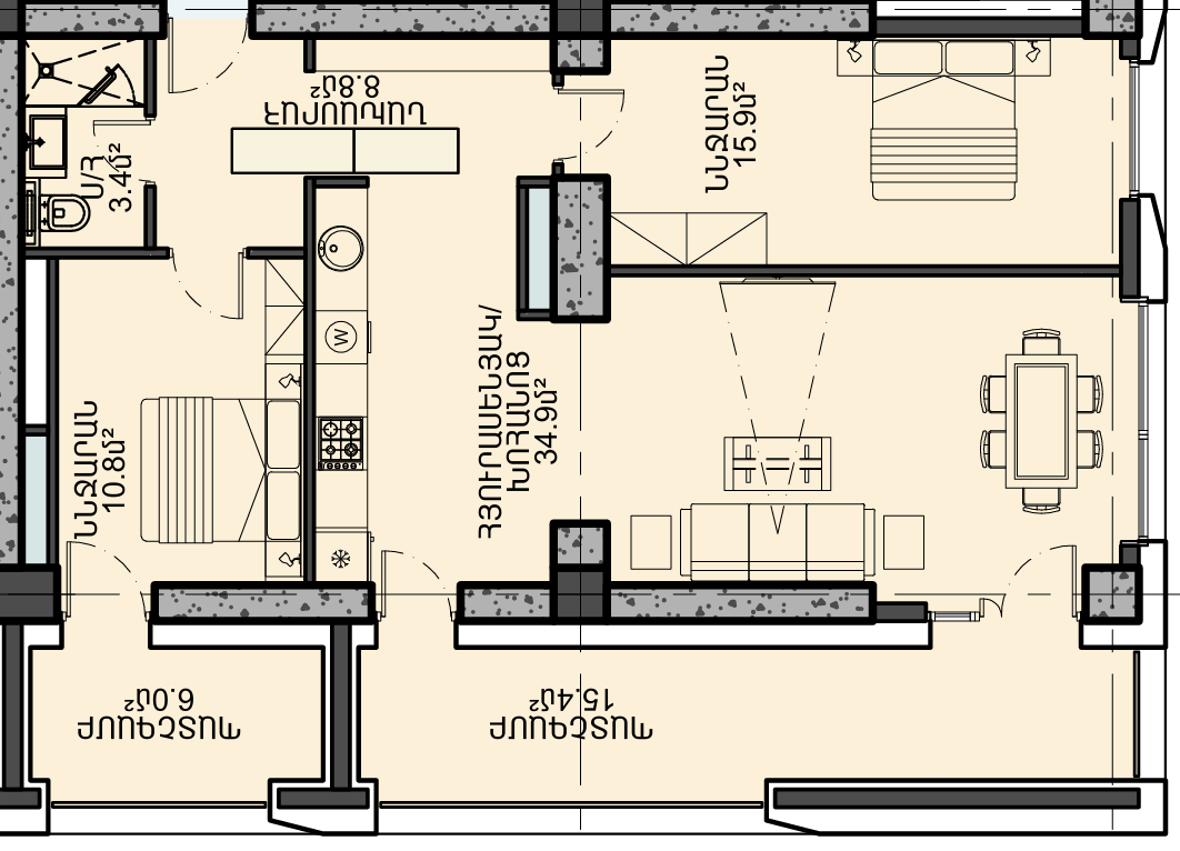
Նախագիծ/
Մասնաշենք 2/
Հարկ 17
Previous
Next
Նկարագրություն
Նախագծի անվանում
Թի ԷՄ Թաուեր
Մասնաշենք
2
Հարկ
17
Բնակարանի համար
Բ-090
Ք․ մետր
95.60
Վաճառքի տեսակ
ազատ է
Սենյակների քանակ
Ննջասենյակների քանակ
Արժեքը (1քմ)
750000.0 AMD
Արժեք
71700000 AMD