Նախագիծ/
Մասնաշենք 2/
Հարկ 10
Previous
Next
Նկարագրություն
Նախագծի անվանում
Թի ԷՄ Թաուեր
Մասնաշենք
2
Հարկ
10
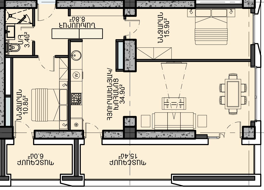
Բնակարանի համար
Բ-048
Ք․ մետր
93.90
Վաճառքի տեսակ
ազատ է
Սենյակների քանակ
Ննջասենյակների քանակ
Արժեքը (1քմ)
670000.0 AMD
Արժեք
6.2913e15 AMD