Նախագիծ/
Մասնաշենք 1/
Հարկ 16
Previous
Next
Նկարագրություն
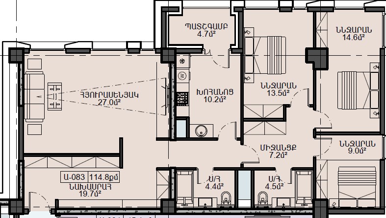
Նախագծի անվանում
Թի ԷՄ Թաուեր
Մասնաշենք
1
Հարկ
16
Բնակարանի համար
Ա-083
Ք․ մետր
114.80
Վաճառքի տեսակ
ազատ է
Սենյակների քանակ
Ննջասենյակների քանակ
Արժեքը (1քմ)
760000.0 AMD
Արժեք
87248000 AMD