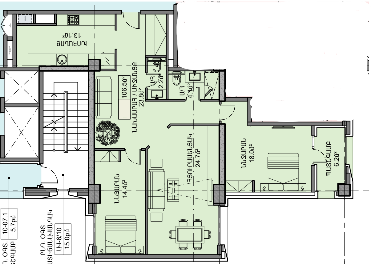
Նախագիծ/
Մասնաշենք Ա/
Հարկ 12
Previous
Next
Նկարագրություն
Նախագծի անվանում
Տիգրան Մեծ
Մասնաշենք
Ա
Հարկ
12
Բնակարանի համար
Բ-392
Ք․ մետր
106.50
Վաճառքի տեսակ
ազատ է
Սենյակների քանակ
Ննջասենյակների քանակ
Արժեքը (1քմ)
600000.0 AMD
Արժեք
63900000 AMD